U184
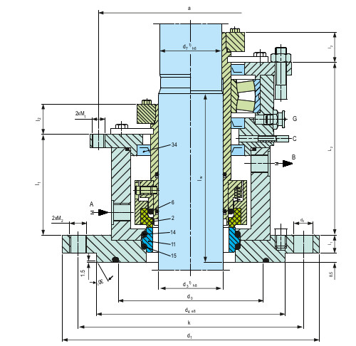
Product Description
- Single and Dual seal configuration
- Unbalanced design
- Independent of direction of rotation
- Cartridge construction
- Designed for top entry vessels
- Rotary unit with multiple springs
- Construction with Integrated bearing also available

